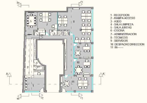
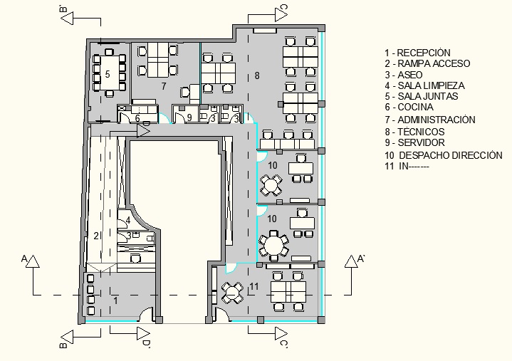
Planta de distribución y mobiliario (entrada general a la izquierda y a la derecha en fachada principal el estudio de arquitectura)
Alzados con las vistas del espacio.
Superar los desafíos en el diseño de interiores requiere no solo creatividad y visión estética, sino también una comprensión profunda de las necesidades prácticas y emocionales de los clientes. Aquí d ...
Crear un plan de espacio con un presupuesto limitado requiere de una estrategia detallada que permita maximizar cada euro, sin comprometer la calidad y la estética del diseño. Aquí te detallo cómo abo ...
La edificación sobre la que se llevará a cabo la rehabilitación es una propiedad particular que lleva varios años deshabitada. Su construcción data de la primera mitad del siglo XX. La vivienda se enc ...
El motivo de la reforma parte de la necesidad de los propietarios, una pareja con dos hijos, de optimizar el espacio de la vivienda de 105 m2. Adaptar los dormitorios a las nuevas necesidades, trasla ...