Proyecto para venta de vivienda

Cuando disponemos de una vivienda que no se ha reformado en muchos años, y deseamos ponerla a la venta, es muy importante reformar o en su defecto, acompañar la venta con un proyecto de reforma que al futuro comprador le pueda resultar atractivo.

Acompañar las fotografías de la vivienda con imágenes de las diferentes estancias reformadas y con un presupuesto coherente a las mismas, nos puede facilitar la venta y da posibilidades a los compradores, que pueden alterar algunos acabados ajustando la vivienda a sus necesidades.

La inversión realizada nos dará un buen retorno, tanto en interesados en la vivienda como en agilizar la venta de la misma, al mostrar las posibilidades que ofrece y aportar el valor añadido de proyecto nos puede ser de utilidad a nosotros y al comprador, que puede aportar a la tasación el proyecto a realizar.





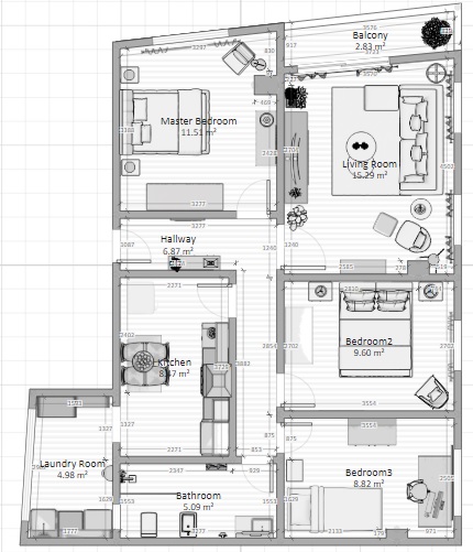
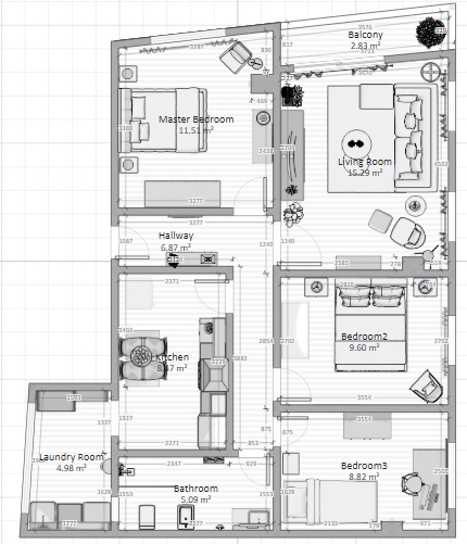
El proyecto que se muestra es una vivienda de 50 años y 85 m2 que se ha puesto en venta y no obtiene interés por parte de los compradores, a pesar de estar muy bien situado y haber restaurado la fachada y sustituido las ventanas, al tratarse de un segundo piso sin ascensor y necesitar reforma no atraía compradores.

El presupuesto para proyecto de reforma es de 21.800 €, incluye:

- Electricidad (nueva instalación)

- Fontanería (nueva instalación)

- Albañilería

- Pavimentos

- Sustitución de puertas

- Cocina

- Pintura

La vivienda se vendió el mismo mes que se puso a la venta.

Entrada



Dormitorio 1



Salón





Dormitorio 2



Baño



Cocina



Lavadero



Planta de distribución y mobiliario



Fuente: este post proviene de Patricia Alberca Diseño, donde puedes consultar el contenido original.
¿Vulnera este post tus derechos? Pincha aquí.
Creado:
¿Qué te ha parecido esta idea?

Esta idea proviene de:

Y estas son sus últimas ideas publicadas:

La edificación sobre la que se llevará a cabo la rehabilitación es una propiedad particular que lleva varios años deshabitada. Su construcción data de la primera mitad del siglo XX. La vivienda se enc ...

Etiquetas:

Recomendamos

Relacionado

consejos vender casa

En el momento que decidimos vender nuestra vivienda el tiempo de espera hasta que llegue el comprador puede parecernos eterno. Vender un piso o una casa de segunda mano en estos momentos no es una tarea sencilla, mucho más difícil si decides vender, cuando estás habitando la casa. Es importante que esa vivienda destaque por encima de toda la oferta de mercado de tu zona, como te contábamos en este ...

Destacados decorar una vivienda vender una casa

Muchas personas toman la decisión de poner en venta su vivienda para comprar otra más acorde a su situación presente o simplemente, porque se trata de una segunda residencia que no se puede disfrutar tanto. Existen aspectos que suman un valor muy importante a una casa en venta. Una de ellas es la ubicación. Dónde está situada una casa es uno de los aspectos que más valoran los nuevos compradores. ...

general arquitectura casa ...

Hoy os traigo un proyecto de reforma que he realizado para una vivienda en venta en el ensanche de Valencia. Cuando pensamos en comprar una casa, y visitamos varias, puede que no lleguemos a ver el potencial que estas pueden llegar a tener. Es difícil hacerse una idea en una visita rápida y sin ayuda de un técnico. Por eso, los propietarios de este piso pensaron que una forma de añadirle valor a l ...

Mis proyectos Casa Decoración ...

Cómo interiorista hago diferentes tipos de trabajo; desde asesoramientos en decoración, cómo también reformas para el hogar. Hoy quiero enseñarte el pre-proyecto deco online, que he realizado para la reforma de una vivienda integral en Madrid. Los proyectos online están cada vez más en auge. Mi cliente me contacto tras conocerme por redes sociales. Se había comprado una vivienda de segunda mano en ...

Decoracion decoración de interiores home staging

Imagina: estas buscando nueva casa, sabes en qué zona la quieres, has visto algunas fotos y ya tienes día y hora para ir a verla con el comercial. Los días previos a la visita no lo puedes evitar y te dejas llevar imaginando como puede ser la casa y tu vida allí. ¿Tendrá suficiente luz? ¿El salón comedor será amplio? ¿El jardín será bonito? Llega el día de ir a ver la casa y … ¡ZAS! no sales corri ...

En el proyecto para la reforma integral de esta vivienda en el centro, nos encontramos una superficie de 80 m2 excesivamente compartimentada y con un solo baño, al tratarse de una última planta dispone de abundante luz que aprovecharemos en el proyecto. Las necesidades que el cliente nos solicitó, dormitorio principal con baño en suite y vestidor, dos baños completos y un segundo dormitorio multif ...

general apartamento decorar ...

La clave para decorar un apartamento destinado a la venta o alquiler es tratar de despersonalizar al máximo posible cada estancia, utilizando colores neutros y siguiendo la filosofía del menos es más. El futuro comprador o arrendatario tiene que imaginarse viviendo en la casa, tiene que sentirte cómodo. No es necesario amueblar completamente la vivienda pero sí es básico que cada habitación tenga ...

apartamento vivienda venta ...

Si eres propietario tanto de una vivienda de obra nueva como una de segunda mano y tienes en mente ponerla a la venta, debes saber que si la vendes amueblada, el porcentaje de venta se incrementa y mucho. Y para amueblarla de la mejor forma posible tampoco hace falta dejarse un dineral en ello. Hoy te vamos a contar desde nuestro blog una serie de directrices para que amueblar tu apartamento o pis ...

Mis proyectos Casas Decoración ...

Hoy me hace mucha ilusión poderte enseñar las fotos profesionales del proyecto online que realicé para la reforma integral de una vivienda en Madrid. Hace unos días en estas mismas páginas te mostraba el pre-proyecto de esta reforma. Hoy quiero mostrarte más detenidamente todo el proyecto, comentarte las necesidades del cliente, sus gustos, estilo; y cómo todo ello influyo en el resultado final de ...

Mis proyectos Casas Decoración ...

Hoy me hace mucha ilusión poderte enseñar las fotos profesionales del proyecto online que realicé para la reforma integral de una vivienda en Madrid. Hace unos días en estas mismas páginas te mostraba el pre-proyecto de esta reforma. Hoy quiero mostrarte más detenidamente todo el proyecto, comentarte las necesidades del cliente, sus gustos, estilo; y cómo todo ello influyo en el resultado final de ...