Restaurante Pedro Roca

Cerca del casco histórico de Santiago de Compostela, tras una discreta puerta de acceso, se esconde un restaurante de pocos metros cuadrados con un interior aparentemente sencillo pero a la vez lleno de matices. Se trata del restaurante Pedro Roca, considerado uno de los mejores de la ciudad. La comida es espectacular, aún siento en mi paladar los exquisitos sabores derivado de los platos gallegos preparados con la mejor materia prima de la zona.

Restaurante-Pedro-Roca_7


El interiorismo lleva la firma del estudio de arquitectura Gallego Arrokabe, que han sabido sacar partido de un espacio que presentaba imnumerables condicionantes arquitectónicos.

Restaurante-Pedro-Roca_14


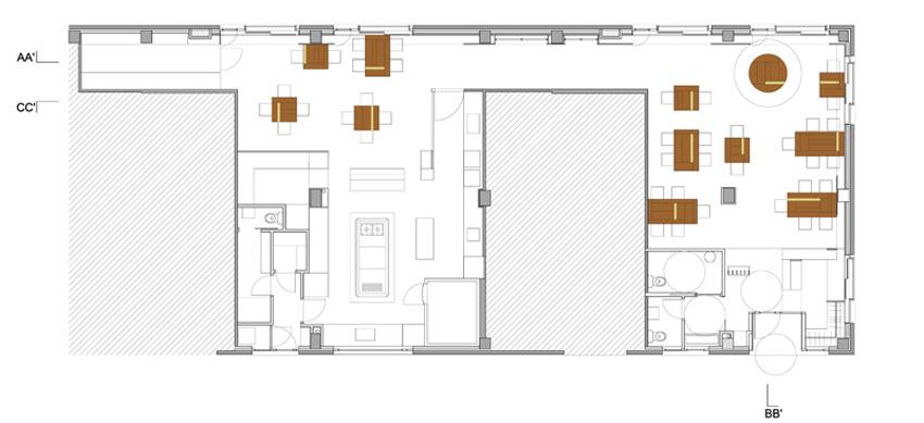
El programa de necesidades es bastante reducido, se compone de zona de comedor, cocina, bodega, servicios y zona de recepción.

Restaurante-Pedro-Roca_9


La cocina es, sin duda alguna, la gran protagonista. Ocupa gran parte del restaurante y se abre completamente a uno de los salones, estableciendo así, una comunicación directa entre cocinero y cliente. Uno se siente, verdaderamente, como si estuviera comiendo en su propia casa.

Restaurante-Pedro-Roca_11


Restaurante-Pedro-Roca_12


En la zona del comedor, compuesto por dos salones separados, lo que me ha llamado mucha la atención fue el tratamiento diferenciado del falso techo y el revestimiento perimetral interior del cerramiento de la fachada. Para el techo, los arquitectos han utilizado unas finas laminas de madera sujetas a una estructura metálica, mientras que el cerramiento interior se trata de un trasdosado formado por tablones de madera de pino sin cepillar que, en los huecos, se transforma en contraventanas correderas.

Restaurante-Pedro-Roca_6


Restaurante-Pedro-Roca_15


De esta forma, además de reforzar la continuidad espacial del comedor, se contribuye a mejorar notablemente el acondicionamiento acústico y térmico y se elimina una referencia tan directa a la rígida composición exterior de huecos. Las múltiples variables de las contraventanas permiten controlar las vistas hacía al exterior, así como la entrada de iluminación natural produciendo un efecto de luz y sombras muy agradable.

Restaurante-Pedro-Roca_5


Restaurante-Pedro-Roca_4


En la zona de la entrada, se ubica un pequeño vestíbulo delimitado por una barra de servicio, un mueble de apoyo y los aseos. Se origina así, un tamiz entre la recepción y el resto del local.

Restaurante-Pedro-Roca_3


Restaurante-Pedro-Roca_13


La madera aparece por todos lados, en el revestimiento del suelo, paredes, ventanas y mobiliario. En algunos puntos del restaurante, se combina este material con grises y verdes grisáceos, que unidos a la iluminación natural tamizada por las contraventanas y las luminarias suspendidas orientadas sobre las mesas, crean una atmósfera relajante y agradable.

Restaurante-Pedro-Roca


Restaurante-Pedro-Roca_2


Restaurante-Pedro-Roca_12


En cualquier restaurante, sobre todo en los que ofrecen una cocina de autor, no hay que olvidar que los protagonistas siempre son los platos, la arquitectura se queda en un segundo plano, como un envoltorio que no compite, simplemente potencia y pone de manifiesto los extravagantes sabores de la cocina.



Referencia fotográfica: Bernardo Diéguez, Fuco Reyes, restaurante Pedro Roca, Arrokabe, Veredes

Fuente: este post proviene de La Habitacion de Ana, donde puedes consultar el contenido original.
¿Vulnera este post tus derechos? Pincha aquí.
Creado:
¿Qué te ha parecido esta idea?

Esta idea proviene de:

Y estas son sus últimas ideas publicadas:

Después de estas largas fiestas … empezamos el año con fuerza, energía y muchas novedades en diseño … Si piensas que todo está inventado, la respuesta es definitivamente No. NYOVA, una edi ...

Hace algunos meses tuve la oportunidad de conocer un hotel con mucho encanto llamado A quinta da Auga, ubicado a las afueras de Santiago de Compostela a orillas del río Sar. Un entorno natural privile ...

Las casas están hechas para ser disfrutadas, sentirnos bien, dar vida y alegría a nuestro entorno más íntimo. Evidentemente no podemos estar cambiando constantemente nuestra decoración, primero porque ...

Recomendamos

Relacionado

general cafetería decoración ...

¡Vamonos de Restaurante! Pero no a uno cualquiera a uno nuevo, en frente del Bernabéu en Madrid, decorado por Cousi Interiorismo. SIX es el nuevo proyecto de los hermanos Galán (También dueños de La Misión, El recuerdo, El olvido....) y promete mucho. Al igual que el Restaurante Mr. Frank que os enseñé aquí, el sello de este estudio de interiorismo está en cada uno de los espacios que componen al ...

decoración contemporanea gris local ...

Este Restaurante, que se encuentra en Copenhage el pasado 12 de Septiembre recibió el premio al mejor restaurante del mundo en los Restauran & Bar Design Awards. Diseñado por Norm Arquitects, ha sido uno de los ganadores absolutos de esta quinta edición, junto a el Atrium Champagne Bar de Foster and Partners (Situado en el "Me Hotel" de la Cadena Meliá en Londres, recordar que os hable d ...

general

Hoy os traigo un imprescindible a visitar si eres de buen paladar. El restaurante esta alojado en una casa autóctona de finales de 1800, recuperada pero sin olvidar sus orígenes. Situada en Pereiro de Aguiar, un municipio al este de Ourense. El continente: totalmente restaurado, te hace viajar a otra época. El contenido: moderno y funcional. Diría que el resultado final es un equilibrio entre ant ...

decoración restaurante vintage ...

Ric 27 es un restaurante de referencia y un nuevo punto de encuentro en Zaragoza. Un diseño muy interesante que mezcla diferentes solados, espejos enmarcados, madera envejecida, muebles vintage, lámparas Fly y cuidados detalles, todo ello en un ambiente ecléctico y vintage. Una carta de cocina mediterránea, productos de temporada y producto de mercado, mezclada con tapas de diseño y una buena sele ...

Decoración Decoración contemporanea Restaurante ...

Hoy os traigo un restaurante indio bien chulo, está en Frankfurt - así que anotarlo para cuando os vayáis para allí de escapada - diseñado por el estudio de diseño Berlines: Ett la Benn. Creo que han conseguido una vuelta de tuerca a los diseños de restaurante indios que estamos acostumbrados. Se trata de un espacio elegante, moderno, de estilo industrial ecléctico. Una mezcla muy interesante. In ...

general

¿Conocéis el Big Fish? Situado en Barcelona, el Big Fish se creó como un nuevo concepto de pescadería de diseño dónde se podía comprar pescado de playa, escuchar jazz y tomar una copa de vino mientras te preparaban sushi para llevar. Con el tiempo se introdujo la degustación y así es cómo se llegó a la restauración con el primer restaurante Big Fish Born, del que hoy os muestro estas bonitas fotog ...

general barcelona desestrÊsate ...

Buenos días Terminamos la semana en una ciudad que nos encanta, a la que tenemos muchas ganas de volver y más si podemos disfrutar de una comida estupenda en Roca Bar. Un restaurante situado en el lobby del Hotel Omm de Barcelona, donde los hermanos Roca nos deleitan con una cocina para disfrutar a cualquier hora del día, y que cuenta con un plus añadido ya que, además, el local cuenta con una zo ...

general gastronomía amsterdam ...

En un conjunto de invernaderos construidos en 1926 en Frankendael Park, entre la Torre Rembrandt y Watergraafsmeer, en Amsterdam, descubrimos un extraordinario oasis de tranquilidad donde disfrutar de una excelente comida o cena entorno a un tipo de cocina donde prevalece la devoción a los productos de cultivo propio, ingredientes de proximidad y materia prima de temporada. Tras conseguir una est ...

general interiorismo

El Silk Social Space es un maravilloso complejo con un innovador concepto de restauración. En él se dan lugar diferentes espacios. El Silk and Soya, un distinguido restaurante reconocido por el Ministerio de Comercio Tailandés con el certificado ThaiSelect por la calidad y autenticidad de su cocina. La discoteca Still Lounge para bajar la cena bailando hasta altas horas de la mañana. Terraza del S ...

Viajes y ocio

Nomad es seguramente el "restaurante guapo" más conocido de Marrakech. Al igual que Le Jardín, del que ya os hablé aquí, fue fundado por Kamal Laftimi quien, junto a Sebastián de Gzell, adquirió en 2014 una antigua tienda de alfombras situada al lado de la famosa Plaza de las Especias y la transformó en un coqueto restaurante de la mano del diseñador de interiores Romain Meniere. Nomad ...