Sacarle partido a un dormitorio juvenil

Modulo a medida


¿Os habéis encontrado en la tesitura de renovar el dormitorio de vuestros hijos, pero no sabéis por donde empezar para sacarle partido a un dormitorio juvenil? ¿Quereis un ambiente mucho mas diferente a una composicion modular sin mas? Pero el espacio de almacenaje es ese plus al que no quereis renunciar, ¿verdad?

Pues bien, hoy vamos a ver, el elemento, y construcción arquitectónica ideal con el que resolver estos “males”. Una solución completamente a medida, perfecta para sacarle partido a espacios, donde a veces nos dejamos asesorar por tiendas de muebles, que nos venden composiciones de catalogo sin mas, perdiendo el aporte decorativo con el que queremos dar.

En dormitorios infantiles y juveniles apuesta por un toque funcional y decorativo. No te dejes encandilar por composiciones sin mas, busca la diferencia y el desarrollo de tu hijo. Que se sienta en un espacio único.


Hoy se trata de una composición de mueble en forma de O completamente de pared a pared, plagada de extraibles, puertas y soluciones de almacenaje, que enmarca en un espacio de contrachapado natural un interior de color.

Combinado con una pieza mas vintage y el toque personal de este secretair, el resultado es fabuloso.

Dormitorio adolescente con mucho provecho
Cama a medida
Mueble a medida para el dormitorio
Dormitorio adolescente perfecto
Cama para adolescente de diseño
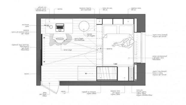
Croquis dormitorio juvenil


via

La entrada Sacarle partido a un dormitorio juvenil aparece primero en Blog decoración y Proyectos Decoración Online.

Fuente: este post proviene de Blog de ComodoosInt, donde puedes consultar el contenido original.
¿Vulnera este post tus derechos? Pincha aquí.
Creado:
¿Qué te ha parecido esta idea?

Esta idea proviene de:

Y estas son sus últimas ideas publicadas:

Recomendamos

Relacionado

Decoora

Las habitaciones juveniles se convierten en un refugio. Mientras que las habitaciones infantiles cumplen dos únicas funciones, cuarto de juegos durante el día y lugar de descanso por la noche, las juveniles deben servir para descansar, estudiar y reunirse con amigos, entre otras necesidades. Con tantas necesidades a cubrir, amueblar las habitaciones juveniles pequeñas se convierten en todo un ret ...

estilos decoración inspiraciones

Uno de los sueños de cualquier mujer es poder tener un vestidor, donde ordenar su ropa y complementos. La mayoría de las viviendas no nos permiten tener una habitación dedicada a ello, hoy te quiero enseñar 6 claves para sacar el máximo partido a tu armario. ¿Lo miramos? Los vestidores son las habitaciones de culto de cualquier persona fashionista, donde expone las prendas y complementos como si d ...

almacenaje armarios ideas deco ...
TIPS DECO: 5 IDEAS PARA CONSEGUIR MÁS ESPACIO DE ALMACENAJE EN TU DORMITORIO

Buenos días, Ahora que estamos en plena época de cambio de armarios y seguro que más de uno se ha pasado el fin de semana reorganizando ropa (por lo menos aquí, que de repente llegó el caloret del verano =), es el mejor momento para tomar nota de algunos trucos a la hora de redistribuir el almacenaje del dormitorio y sacarle el máximo partido; y para eso hemos preparado estos TIPS DECO PARA CONSEG ...

general dormitorios janire
Consejos para distribuir un dormitorio muy pequeño.

A tod@s nos gustaría disponer de un dormitorio amplio en el que incluso pudiéramos albergar una zona de relax, un escritorio.......Pero la realidad suele ser muy distinta, y en muchos de nuestros hogares los dormitorios y habitaciones son de dimensiones reducidas. Pero esto no puede suponer un obstáculo a la hora de distribuirlas, tan solo necesitamos unos cuantos recursos y consejos para lograr u ...

Deco Kids Espacios Kids Dormitorios ...

Cuando los peques de la casa crecen es necesario cambiar sus espacios y adaptarlos a su edad, sus gustos y necesidades. Los dormitorios juveniles, al igual, que los infantiles permiten muchas opciones y estilos para decorar. Hoy te quiero enseñar ¿cómo decorar un dormitorio juvenil?, diferentes opciones y estilos para que los adaptes a tu espacio y estilo. ¿Me acompañas? Los dormitorios juveniles, ...

hogar sabias que... hogar ...

Desde hace años, las mopas ocupan el trono como la mejor opción a la hora de limpiar los suelos de nuestra casa, pero seguro que existen algunos detalles importantes para sacarle el mejor partido a la limpieza de tu hogar y alargar la vida de tu mopa. Existen muchas maneras de realizar la limpieza de nuestra casa, pero no cabe duda que la mopa es una de las favoritas en los hogares. Dentro de las ...

Apartamentos Casas espacios pequeños ...

Tengo debilidad por los espacios pequeños, por esos rincones acogedores y llenos de encanto en los que podríamos pasarnos la vida entera. Por ese motivo me encantan los mini pisos decorados hasta el más mínimo detalle, con ideas resolutivas, con tanto mimo y esmero que la escasez de metros es lo de menos. Porque hacer que todo encaje en pocos metros es todo un arte y, sin duda, tiene mucho mérito. ...

Casas nórdicas Ideas nórdicas

Me encanta esa sensación de limpieza, eso de cambiar las sábanas de la cama y tumbarte en ella, esa olor, esa sensación.. creo que no hay nada superior a ese momento. Por eso, cuando veo casas donde abunda lo blanco, me invade la misma sensación. Pequeñas, grandes, viejas, nuevas.. todas tienen esa sensación de "caja de luz" la cual, solo entrar en ellas, te invade la tranquilidad. Y es ...

general [decotips] consejos ...

Tener pocos metros en el dormitorio a veces es un problema. Pero con ingenio y buenas ideas decorativas hoy descubrirás cómo aprovechar el espacio y ganar confort y calidez. Toma buena nota de estos tips decorativos donde descubrirás las claves para saber usar el color y hacer que el espacio crezca ópticamente, o qué muebles serán los más ligeros y decorativos, o simplemente qué puedo hacer si ...

decorating ideas decotips small bedroom ...

Tener pocos metros en el dormitorio a veces es un problema. Pero con ingenio y buenas ideas decorativas hoy descubrirás cómo aprovechar el espacio y ganar confort y calidez. Toma buena nota de estos tips decorativos donde descubrirás las claves para saber usar el color y hacer que el espacio crezca ópticamente, o qué muebles serán los más ligeros y decorativos, o simplemente qué puedo hacer si no ...