Studio Merlin

Que a tu casa la bauticen con el nombre Maison Pour Dodo (casa para dormir), significa claramente que fue construida para transmitir paz y relax. Libre de ruido visual, con los materiales justos y un almacenaje muy pensado para tener todo guardado, pero sin llegar a acumular.

Imagino que conocéis el término Color Block. Empezó a utilizarse en moda y acabó siendo una tendencia también en decoración. Es algo que se ha aplicado en esta casa, aunque no en su versión más atrevida. Consiste en mezclar dos o más colores para crear dinamismo en las estancias o bien para diferenciarlas, como en este caso, que vemos cómo se ha elegido un tono rosa empolvado para el salón, distintos tonos de azul en cocina y dormitorios, y verde hasta media altura para la escalera. En esta casa, ya que lo que se buscaba era transmitir serenidad, se ha optado por colores poco llamativos.

A esta sensación de calma contribuyen también los materiales. La madera juega un papel importante, tanto el suelo, como la escalera o los muebles a medida son de abeto Douglas, cuyo tono es muy suave y natural. También el hecho de que los espacios, aunque no sean abiertos del todo, se vean claros y ordenados, gracias a un almacenaje perfectamente orquestado.

En la cocina se optó por muebles de la colección Basic de la firma Reform CPH además, uno de los frentes se amuebló sólo la parte baja terminando en una zona de asiento desde donde se contempla tanto la cocina como el salón y el comedor, dejando el otro frente para albergar los armarios altos (pero éstos, no están visibles desde el salón luego disminuye así el ruido visual, más aún cuando se ha elegido este azul intenso). La zona de salón se ha aprovechado para realizar una librería a medida donde exponer tanto libros (estratégicamente colocados por color), como objetos decorativos y plantas. El esquema en el comedor continúa con mesa y sillas de madera blanqueada, el mobiliario es de la firma Ercol.

Siguiendo de nuevo con la idea de minimizar el ruido visual, los propietarios prescindieron de la televisión en favor de un proyector, más discreto ya que sólo se saca cuando se utiliza y mientras, el espacio de estar queda más despejado pudiendo poner sobre el aparador objetos más amables como arte o jarrones con flores.

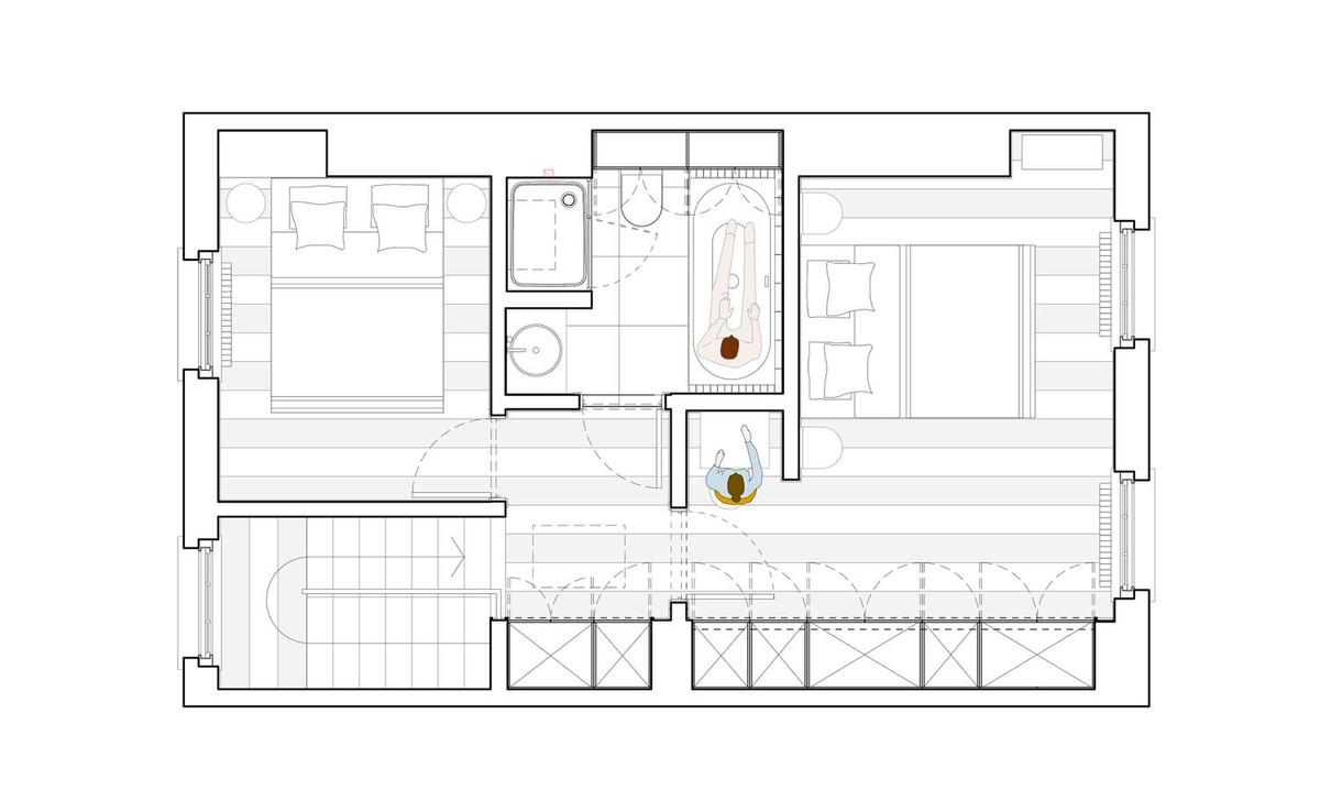
En el segundo piso encontramos el dormitorio principal, éste fue reducido de tamaño para darle espacio al baño e incorporar una bañera exenta además de la ducha. Posee varios metros lineales de armarios empotrados que hacen que todo este perfectamente en orden, ocultando todo lo material y consiguiendo un ambiente más relajado para dormir. No sólo en el dormitorio se han realizado estos armarios a medida, también el rellano de la escalera se ha aprovechado para incorporar más, uno de ellos incluso alberga los aposentos del gato y su aseo :-) nada queda a la vista y además, da soporta al dormitorio secundario que carece de armario.

En el dormitorio principal también, se ha aprovechado un pequeño retranqueo de la pared para amueblarlo con los versátiles sistemas de estanterías y escritorios String y hacer una zona privada de trabajo. Las curiosas mesillas de noche con forma redondeada están hechas a medida con sobrantes de abeto Douglas realizadas y diseñadas por el propio Studio Merlin.

Como veréis al final del post, he incluido los planos. Realmente no es una casa muy grande, tan sólo dos plantas con dos dormitorios, pero muy bien aprovechada y sobre todo con muchas ideas de almacenaje, tal y como dicen los propios arquitectos, no para almacenar cualquier cosa (ya sabemos que, a más espacio, más tendemos a guardar), sino para acumular sólo lo justo y necesario y conseguir una casa limpia y libre de ruido visual. ¿Qué os parece?



























































Fotografía: Richard Chivers para Studio Merlin

Suscríbete al blog por correo electrónico

Introduce tu correo electrónico para suscribirte a este blog y recibir avisos de nuevas entradas.

Dirección de correo electrónico:

Suscribir

¿Vulnera este post tus derechos? Pincha aquí.
Creado:
¿Qué te ha parecido esta idea?

Esta idea proviene de:

Y estas son sus últimas ideas publicadas:

Cómo integrar alarmas y sistemas de seguridad en el interior de una casa sin comprometer el diseño ni el estilo Hasta hace poco, instalar un sistema de seguridad en casa significaba llenar el espacio ...

El color es uno de los elementos más poderosos en la decoración del hogar. No solo define el estilo de un espacio, sino que también influye en nuestras emociones y en la percepción del ambiente. Pero, ...

Este es el piso de Álex Boisset, un viajero incansable, empresario y creador de contenido que ha recorrido el mundo en busca de olas, buen clima y experiencias únicas. Además de su pasión por el surf ...

Me ha costado volver al blog tras las Navidades lo cierto es que, a la locura de las fechas se ha sumado mucho trabajo, lo cual es bueno no me quejo. Como os dije antes de las fiestas, aunque ahora di ...

Recomendamos

Relacionado

Decoración almacenaje en espacios pequeños aprovechar el espacio ...

Da igual los metros que tengas en casa, porque sean pocos o muchos todos necesitamos espacio de almacenaje para guardar ‘trastos’ y ropa. Pero siempre se pueden buscar soluciones para aprovechar el espacio con estilo y una muestra genial para coger ideas es este espectacular apartamento en Gotenburgh, Suecia, donde el estudio de interiorismo e inmobiliaria Alvhem ha hecho un trabajo ex ...

ideas prácticas diseño de interiores

La casa que os traigo hoy la encontré en la revista El Mueble y nada más verla me encantó su salón grande y espacioso, separado de la cocina mediante una pared de vidrio. Como podéis ver en el planito de la vivienda no es una casa enorme pero esta muy distribuida y han ampliado al máximo las estancias.Con una cocina independiente pero abierta tanto visual con su pared de cristal como con las dos ...

Apartamentos casas Inspiración ...

Hoy os enseño otro apartamento de Nueva York, otro sí, pero este tiene algo especial como para tomar nota. Se trata de la división de espacios, de cómo con unas ventanas tipo mallorquinas han conseguido separar de manera visual la entrada, el salón y el dormitorio siendo en realidad un mismo espacio. Las mallorquinas además, tienen la cualidad de abrirse y cerrarse, lo que permite más o menos entr ...

decoración decoración nórdica estilo nórdico ...

Decoración nórdica. Empiezo el post de hoy con una confesión y es que estoy enganchadísima a los programas de la tele de decoración. Ya sabes de esos de Love it or List it y variedades varias. Espero no ser la única! ;D Una de las cosas que han hecho estos programas es que me enamore de los espacios abiertos. Siempre habíamos sido de tener bien compartimentado todo pero creo que diferenciando bien ...

decoración dormitorio salón ...

La tarea de organizar juguetes puede llegar a ser pesada o aburrida y es por eso que muchas veces éstos acaban desperdigados por cualquier lugar. Pero el orden dentro de casa es fundamental para crear un ambiente de confort y no lo es menos en el dormitorio infantil o en la zona de juegos. Por eso hoy vamos a intentar que guardar los juguetes sea más divertido y accesible para los peques de la cas ...

diseño vanguardista diseño en tonos cálidos diseño casa americana ...

Hoy os traigo esta espaciosa casa en St.Louis, Estados Unidos, con un diseño contemporáneo basado en la combinación de la madera de arce y los tonos rojos que le aportan una calidez extraordinaria. Impresionante el diseño arquitectónico del techo del comedor, que encuadra perfectamente el espacio y lo separa visualmente del resto del salón En la cocina, se sigue el diseño de los tonos colorados ...

general interiores espacios reducidos ...

Cuando vivimos en viviendas de reducido tamaño, nos vemos obligados a sacar el máximo provecho a cada uno de nuestros rincones para almacenamiento y poder encajar cada uno de los muebles y accesorios. Debemos huir de sobrecargar los espacios con muebles demasiado grandes, que capten toda la atención visual. Elige siempre colores claros en la mayoría de accesorios y superficies, para dar sensación ...

general deco-ideas

Ideas para ganar espacio en tu dormitorio; Camas sobre cajones y armarios. Cada día nuestros dormitorios son más pequeños y hay que ingeniárselas como podemos para sacar espacio de todos lados. Por eso hoy en este Blog de decoración os hablo sobre ideas para ganar espacio de almacenaje, en concreto bajo la cama! ;) Cualquier espacio es perfecto para tener un lugar donde guardar ropa, libros, jugue ...

Ahorro consejos Decoración ...

Un cambio de casa siempre supone un esfuerzo añadido, y más económicamente. Todos sabemos que si alquilamos  o compramos una casa con equipamiento no siempre es de nuestro gusto y si está vacía debemos dedicarle algo de tiempo ara que se convierta en un lugar acogedor. Desde casika, vamos a darte unas propuestas de muebles que pueden convertir una casa con poco equipamiento o ninguno, en un hogar ...

Estilo Nórdico Dormitorio Rincones trabajo ...

Más conocida por su anterior nombre: Expedit, la estantería Kallax de Ikea, tiene mil y una posibilidades. Prueba a combinar este tipo de mobiliario low-cost con otras piezas más caras o incluso algún mueble vintage o de almoneda, atrévete con las mezclas. Colocada en vertical o en horizontal es ideal para múltiples soluciones de almacenaje, discos, libros...en tu zona de trabajo, en el salón o e ...