Apartamento con nueva distribución y decoración I

Terminamos nuestro recorrido anual con la reforma de un apartamento. Nuestro objetivo primordial fue ganar luz y el paso cómodo entre estancias de la vivienda. Evitamos tocar elementos estructurales porque incrementarían el presupuesto y una inversión extra de tiempo, pues modificar la estructura de una edificación requiere un proyecto previo, supervisado por un arquitecto, con licencias y permisos de obra específicos. Pensamos una distribución que respetara los muros de carga suprimiendo tan sólo tabiques divisores. Buscamos una intervención a nivel espacial y estilística, no estructural.

Te mostramos el proceso con planos y 3D para que aprecies los cambios desde la idea original a la final. Lo haremos en dos partes para no extender el artículo: la primera dedicada a la distribución y reorganización de espacios, y la segunda centrada en la decoración.

Estado original

El apartamento está dividido longitudinalmente por un muro de carga en medio. En anteriores reformas se amplió abriendo un hueco desde la cocina-salón hacia la terraza, ubicando allí el salón y cubriendo ese espacio mediante una cubierta inclinada con friso de madera. Al situarlas al fondo, cocina y baño carecen de luz natural.

Estado original

Ideas de los propietarios

Espaciales




-Eliminar el armario empotrado del dormitorio.

-Cambiar el baño de lugar hacia la cocina.

-Crear vestidor en el baño actual.

-Cocina nueva en L.

-Cambiar ventanas del salón por ventanales hasta el suelo.

Carpintería




-ventanal fijo con cristal ahumado desde el dormitorio hacia el salón.

-puertas del baño y del dormitorio correderas.

Instalaciones




-cambiar fontanería y electricidad.

Estilísticas




-suelos imitación madera.

-columnas en el salón.

Interiorismo (sanitarios, muebles y decoración)




-bañera de hidromasaje.


Propuesta de los propietarios

Los problemas que planteaba esta idea de distribución radicaban en la seguridad, a nivel estructural y principalmente eran dos:

1º. puesto que la antigua pared del dormitorio hacia el salón es parte de la fachada, agrandar ese hueco -aunque no sean paredes de carga-, puede hacer que el peso de las viviendas de niveles superiores termine por agrietar y partir esos muros de apoyo.

2º. El muro interior que divide dormitorio y cocina es de carga. Dada la antigüedad del edificio realizamos una propuesta que no abra más huecos, al contrario, que cierre y refuerce los existentes.

Muebles y electrodomésticos a conservar e integrar en el propuesta:

-sofá rojo con chaise longue,

-lavadora de carga superior,

-frigorífico combi.

El problema con lavadoras de carga superior es que al abrir hacia arriba requieren mucho espacio en vertical, por lo tanto no se pueden colocar elementos a menos de 1,50m. de altura aprox.: no son viables secadoras, calentadores o armarios altos de pared.

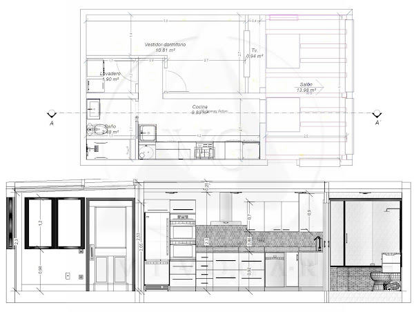
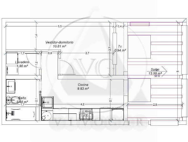
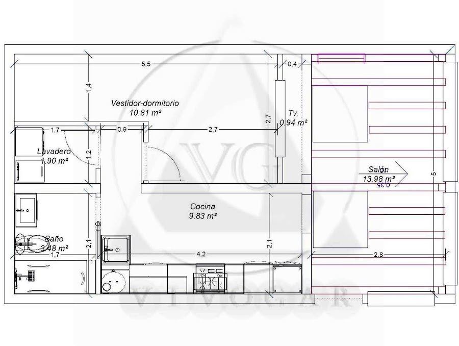
Nuestra propuesta

El principal escollo del apartamento es un muro de carga atravesando la vivienda y dividiéndola en dos. Al tratarse de una edificación antigua y con más viviendas en niveles superiores evitamos cualquier retoque que afecte a la estructura.
Y se nos ocurrió esta solución: darle la vuelta a la idea original intercambiando dormitorio por cocina. Desde la entrada se accede directamente a la zona de día -comedor-. Por otro lado, al no desplazar el baño de su ubicación original el presupuesto se reduce al mínimo. Además, al ampliar el espacio del dormitorio-vestidor nos queda libre la zona de fregadero original, un lugar perfecto para ubicar el lavadero, con las instalaciones listas.


Planta de distribución con cocina, baño y lavadero


Planta con sección



Espaciales




-Mantener los sanitarios del baño en su ubicación, excepto el lavabo que pasa a ocupar el lugar de la lavadora.

-Cambiar la cocina hacia el dormitorio actual, la nueva propuesta con mucho almacenamiento y superficie de trabajo.

-Ubicamos el comedor cerca de la cocina, en la entrada de la vivienda.
-En el salón disponemos el sofá bajo la ventana, moviendo la toma de antena de tv. hacia la nueva pared del dormitorio. No colocamos las columnas que los propietarios deseaban entre comedor-salón, restan superficie y presupuesto a la vez que no aportan estética a la estancia; centramos el foco arquitectónico en el arco de separación entre módulo de tv-sofá. Descartamos cambiar las ventanas por ventanales porque en nuestra distribución el sofá ocupará la zona de estar bajo la ventana, (taparía la luz que entrase). Y por el comedor no merece la pena si tenemos en cuenta que la abertura de la cocina se mantiene inalterable, la claridad que ganaríamos sería inapreciable. Optamos mejor por invertir en dos claraboyas o ventanas fijas en el friso del tejado inclinado, de forma que el sol en su recorrido diurno aporte luz durante la mayor parte del día, y que al estar inclinada, cercana y cenital, la luz incida en el dormitorio y en la cocina.

-Situar el dormitorio en la cocina-salón, separándolo mediante un tabique con ventana alta y ancha para que llegue la luz desde el salón.

-Crear vestidor en la cocina actual.
-El lavadero está previsto para una lavadora de 45 y secadora de 60, o si más adelante lo requiere montarlo en torre dejando 45 cms. para pila de lavar y 60 cms. para la torre de lavado, incluso para lavadora y secadora en línea -ambas de 60 cms.-. El calentador se ubicó en la cocina; de esta forma liberamos el espacio sobre los electrodomésticos, situando estantes para almacenar.

Hay que anticipar las necesidades a medio plazo: los electrodomésticos como las lavadoras tienen una vida media de unos 10 años, en buenas condiciones. Por lo tanto debemos prever esos cambios, especialmente en viviendas reducidas y cuando ubiquemos electrodomésticos con medidas difícilmente ajustables al espacio disponible.

Carpintería

-Ventana desde el dormitorio hacia el salón.

-Dos claraboyas o ventanas fijas de tejado para la cubierta del salón.

-Puertas del baño corredera y del dormitorio abatible o corredera. La puerta del lavadero sería opcional: puede cerrarse el hueco mediante cortinas.

Instalaciones




-Cambiar fontanería y electricidad.

-Aprovechamos el cambio de la toma de antena de tv. para hacer una toma hacia el dormitorio.

¿Quieres saber más?. No te pierdas la 2ª parte: estilo y decoración. y pásate por la sección de bricotecnotrucos, con trucos para ahorrar en tu próxima reforma, parcial o completa.
Te esperamos.

anterior, siguiente

Fuente: este post proviene de Vivogar, donde puedes consultar el contenido original.
¿Vulnera este post tus derechos? Pincha aquí.
Creado:
¿Qué te ha parecido esta idea?

Esta idea proviene de:

Y estas son sus últimas ideas publicadas:

Recomendamos

Relacionado

general decor-art decoración ...

¡Hola mis Artistartes! ¿Cómo lleváis el miércoles? A mí se me están pasando los días demasiado rápido sin parar de hacer cosas. Eso tiene su parte buena (se pasan los días volando) y su parte regular, no eres consciente de en qué día vives? Pero lo que sí sé, es que hoy participamos en la primera cita mensual del año Small&Lowcost  que nos proponen nuestr@s amig@s de RedFacilísimo. Para ello ...

Espacios: reformas e interiorismo

Nuestro último proyecto del blog para este año es una redistribución en la 2ª planta de un dúplex, donde antes existían 3 dormitorios, 2 baños, lavadero y terraza. Logramos una vivienda completa con dos dormitorios y una cocina-salón abierta en la zona más luminosa, incluyendo un lavadero en la terraza. Entra y te lo explicamos todo. Plantas original y reformada. Zona común: salón-cocina y terra ...

Apartamentos

Por fin legamos al final de la semana laboral,y además con este viernes despedimos el difícil mes de Enero. Para celebrarlo vamos a hacer un Tour home por un mini apartamento de tan solo 35m2 cuya distribución me parece sencilamente ideal. No tenéis mas que observar su diseño y estudio del espacio de concepción abierta u open plan....(de estos conceptos ya os hable en ese post) Sin tabiques que di ...

Apartamentos Estilo nordico

El mini apartamento del home tour de hoy me gusta especialmente por varias razones; además de su óptima distribución, reune muchos recursos decorativos para crear sensación de amplitud creando una atmósfera limpia y fresca. Empezamos analizando la distribución, al tratarse un apartamento de reducidas dimensiones el salón y el dormitorio comparten espacio. Para dar mas intimidad al dormitorio se h ...

Espacios: reformas e interiorismo

En el proyecto de marzo te mostramos un piso de 70m² con una distribución bien aprovechada. En la zona común se ubican el recibidor que da paso al salón-comedor, y una cocina abierta en L. Y en la zona privada dos dormitorios, el principal con baño en suite, y otro baño más con acceso desde el pasillo distribuidor, donde situamos un armario que funciona como trastero y lavadero. ¿Quieres ver la pr ...

Espacios: reformas e interiorismo

Proseguimos con la decoración de nuestro apartamento del mes. Una vez que se ha decidido la distribución pasamos a la decoración. El estiloLos propietarios deseaban el suelo y los acabados en madera. Por otra parte observamos predominio de negro en la decoración original y propusimos dos opciones generales de revestimientos: A con madera, B alternativa en gris. A. Con suelos porcelánicos o viníl ...

Mini Aprovechar el espacio Design ...

En un área pequeña como es el caso del proyecto de interiorismo de hoy, es muy difícil identificar las áreas funcionales tales como el dormitorio, cocina, vestidor y cuarto de baño. En apenas 32 m² los diseñadores de este pequeño apartamento en estilo Art Deco parten de una zonificación no estándar y un poco atrevida. Se parte de un programa de necesidades para una persona soltera o pareja joven y ...

Espacios: reformas e interiorismo

Plantas 2D: original y reformada. En nuestro proyecto de octubre reformamos un apartamento, incluyendo un dormitorio infantil y redistribuyendo el salón-cocina. El dormitorio infantilUbicado en la zona donde antes estaba el salón, aprovechando la ventana y de dimensiones reducidas. El espacio se ha dividido en 3 zonas: de descanso más juego, almacenamiento y estudio, justo al lado de la ventana. ...

blanco y negro estilo nórdico fichajes deco ...

¡Locas nos tiene este pequeño apartamento en París! Y es que no es para menos... Desde que lo vimos, se convirtió en uno de nuestros proyectos preferidos de todos los que os hemos ido enseñando estos años en el blog, especialmente como ejemplo de aprovechamiento y buena distribución de un espacio pequeño. Situado en pleno corazón del barrio de Marais, en un edificio del siglo XVIII, esta impecable ...

casas deco Espacios Pequeños

Hoy os traemos un "pequeño" apartamento newyorkino, que hemos encontrado en iDesingArch. De estilo contemporáneo y minimalista, este típico apartamento de soltero nos encanta por su cuidado diseño y porque resuelve sorprendente bien una planta muy, muy complicada. Comenzamos nuestra visita al interior del apartamento: una ligera repisa de madera de corte asimétrico, un espejo y un jarró ...