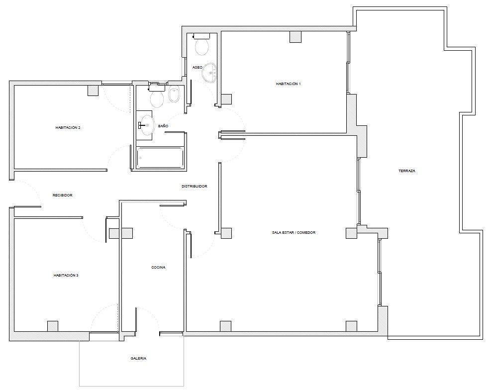
Carol acaba de comprar un piso y necesitaba ayuda para sacarle el mayor potencial en la distribución y llenarlo su gusto personal, el cual necesitaba una reforma integral. El estado actual del piso contaba con tres dormitorios, una cocina, un salón comedor bastante amplio, un ase, un baño completo y una terraza muy amplia con salida a ella desde el dormitorio principal y el salón comedor.
ESTADO ACTUAL
Desde el primer momento Carol tenía claro que quería dar toques en la decoración de un estilo rustico, plantas y tonalidades tierras, pero no tenía muy claro que mobiliario y elementos podían encajar y la distribución para el espacio que tenía.
Uno de los puntos importantes que se buscaba conseguir era aprovechar todo el espacio posible para almacenamiento, tanto en cocina, baño y dormitorio.
El dormitorio principal se buscaba optimizar el espacio y añadir una zona de vestidor y una zona de trabajo y lectura.
Las zonas que más trabajo necesitaban eran el baño y la cocina ya que los acabados y muebles estaban en mal estado y se tenían que sustituir.
La NUEVA DISTRIBUCIÓN
Con la nueva distribución el número de dormitorios que tenía la casa se mantienen quedando una habitación doble y otro individual para invitados y el dormitorio principal ahora con el vestidor abierto.
El salón, comedor y zona de lectura
En la sala comedor al cerrar una puerta y derribar un tabique se crea un espacio más abierto se añade una zona de lectura con biblioteca al salón comedor.
el dormitorio PRINCIPAL
El espacio donde estaba el aseo se añade al dormitorio principal como zona de vestidor abierto con armario a medida y completamente abierto a la habitación creando las circulaciones más fluidas y dejar pasar a todos los rincones de la estancia la luz natural.

















