Cuando el espacio de la cocina no es un problema



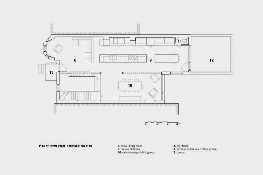
Aunque no es lo más habitual, tener una gran cocina no es un problema si se le destina el espacio suficiente y se es un verdadero apasionado del arte culinario. En Monteral, Canadá, la renovación de ésta vivienda tenía como prioridad una gran isla que fuese la auténtica protagonista de la casa y que ocupase una parte importante de la segunda planta para aprovechar la luz natural, incluso sacrificando parte de las áreas del salón y comedor, dejando los dormitorios en la planta baja. 
Compuesta por una larga isla de más de 4,5 mts. que contiene la zona de cocción y el fregadero y está alineada con una segunda isla que termina en una cómoda mesa para desayunos. Detrás, todo un bloque de armarios que esconde el frigorífico de 2 puertas verticales, hornos, despensa y escobero, además de un baño que se integra perfectamente al conjunto. 
Los muebles acabados en chapa de madera de anigre, se combinan elegantemente con los frentes lacados en negro mate, sin tiradores y con la estupenda encimera de esteatita. Todo un placer para los que disfrutan de la gastronomía y de los espacios abiertos.
Es un proyecto de Naturehumaine.














Fotos Adrien Williams


Fuente: este post proviene de Cocinas con estilo, donde puedes consultar el contenido original.
¿Vulnera este post tus derechos? Pincha aquí.
Creado:
¿Qué te ha parecido esta idea?

Esta idea proviene de:

Y estas son sus últimas ideas publicadas:

Recomendamos

Relacionado

Decoración muy Chic Glamour

Normalmente el mayor problema al decorar suele ser encontrar espacio para todo lo que necesitamos, pero cuando el espacio es enorme, como en esta casa de Londres, los problemas no acaban, sino que se transforman, porque ahora lo importante es que no parezca vacío ni desencantado, pero sin que parezca lleno de piezas sin sentido. Via Nicety blog Uno de los secretos para conseguir ...

Decoración y Diseño Información Proyectos de Cocinas ...

En la reforma de un apartamento se busca ganar espacio, aunque sea visualmente, crear un ambiente agradable y sobretodo, conectar las principales estancias donde se desenvuelve la vida cotidiana, dando a cada ambiente su protagonismo, y cuando el espacio es abierto, para mi,  la cocina es el alma de un apartamento, porque a partir de ella se puede desarrollar el resto… Dentro de una reforma ...

Cocinas con península Cocinas en U Cocinas minimalistas

Una interesante alternativa a la hora de pensar en cómo distribuir la cocina, es la forma de U, que en determinados espacios amplios y alargados, resulta muy cómoda ya que se reducen los desplazamientos entre las diferentes áreas, mientras se prepara la comida, se limpia o se ordena todo después de terminar la labor culinaria del momento. En éste caso, además, cuenta con una península y una agrad ...

general casas cocinas ...

Entre lluvia, reuniones clandestinas, y proyectos y mas proyectos, la verdad es que la semana se ha pasado en un abrir y cerrar de ojos. Así sin querer nos hemos plantado en el fin de semana, y lo "peor" es que ahora ya podemos dar por inaugurada la temporada navideña. Casi sin darnos cuenta, estamos ya en diciembre, rodeados de turrones, dulces y mas adornos.Una época en la que nos plan ...

Cocinas Muebles

Encontrar espacio para colocar una isla de cocina es entre quienes deben amueblar una nueva cocina o reconfigurar la vieja un deseo frecuente. Las islas de cocina se han convertido en una pieza “imprescindible” en las viviendas de concepto abierto, pero no es necesario echar los tabiques de la cocina abajo para incluir una en el diseño. Las islas de cocina son una fantástica herramient ...

cocinas interiores decoración cocina ...
Como ganar espacio en la cocina.

Reformar la cocina no se trata solo de una cuestión de estética, sino de algo puramente funcional….prima el espacio y cuando no lo tenemos, buscar la manera de reinterpretar y ganar algunos metros para colocar muebles de almacenamiento, un office o una isla de cocina puede volverse misión imposible. Aquí teneis un antes y después para descubrir dos reformas que han convertido dos cocinas an ...

Cocinas

¿Tienes una cocina nueva que amueblar? ¿Quieres darle un aire nuevo a la que ya tienes? Empezar por estudiar las posibilidades que tiene el espacio es clave para dar con la mejor forma de distribuir la cocina. Porque conseguir un espacio totalmente funcional y cómodo debe ser tu objetivo. ¿Qué forma tiene tu cocina?, ¿está cerrada o abierta a otros espacios?, ¿tiene mas o menos de 20m2? Si conoces ...

Diseño de cocinas Cocinas con isla Cocinas de madera

Uno de los aspectos fundamentales de un buen diseño de cocina es sacar el máximo provecho al espacio que tenemos destinado para ella. Esto pasa a ser menos importante cuando la estancia es grande y no tiene obstáculos arquitectónicos, pero elemental cuando el sitio es más pequeño. En este caso, en un área de unos 10 m2, con una columna atravesada casi en medio, ventanales en un lado, pared discon ...

general plantas

Una planta en tu cocina siempre aporta frescura a su decoración, pero como es un sitio de trabajo cuando crecen siempre terminan molestando. Con estas plantas enlatadas tienes lo bueno de las plantas y te puedes olvidar de que te quite espacio. Pero es que además son plantas que podrás utilizar en tu platos. Estas latas vienen con albahaca, tomate, chiles o menta. Pero tu mismo puedes coger una l ...

canapés canapés abatibles canapés con cajones ...

A la hora de plantearnos la decoración desde cero de un dormitorio, vamos a buscar la combinación perfecta entre confort, diseño y almacenaje, y los canapés de ofrecen las tres prestaciones. Porque, aunque el colchón suele ser lo que más nos preocupa al mudarnos a un nuevo hogar, su elección siempre viene acompañada por la base que lo sostendrá, la cual nos puede dar muchísimo juego. Así, a la h ...