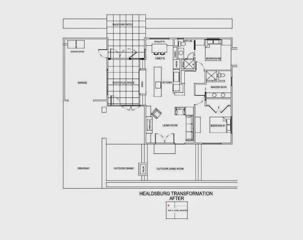
Con la mirada puesta en la reutilización de encuadre y la fundación, una casa nueva de dos dormitorios renació. El área de entrada (creado como un salón pero fácilmente convertida en una zona de comedor) difumina la línea entre el interior y por fuera con un piso de concreto que pasa justo al patio trasero.
Encantadora Casa de Campo con un cálido ambiente familiar en California
Con la mirada puesta en la reutilización de encuadre y la fundación, una casa nueva de dos dormitorios renació. El área de entrada (creado como un salón pero fácilmente convertida en una zona de comedor) difumina la línea entre el interior y por fuera con un piso de concreto que pasa justo al patio trasero.

Esta idea proviene de:
Y estas son sus últimas ideas publicadas:
Hogares Frescos Sumérjase en la encantadora atmósfera de varias Casitas pequeñas con encanto! Son exquisitas y románticas. Nos invitan a soñar. Imperceptiblemente, mientras las miramos a ellas, nos va ...
Casa I es una residencia privada ubicada en Las Rozas, uno de los municipios más grandes de la comunidad autónoma de Madrid, España . Fue terminada en 2013 por Bojaus Arquitectura. Casa I está situado ...
La ciudad sueca de Gotemburgo es única en su capacidad de ofrecer la vida urbana sin dejar de sentirse como una pequeña ciudad. Por un lado, no hay escasez de restaurantes y salas de cine para disfrut ...
Mediante la adición de paneles de madera y barandillas de acero a una casa existente en Saint-Tropez, Francia, Vicente Coste reinventó su carácter. Según el diseñador, la casa L2 es el resultado de un ...