Proyecto de decoración; Salón-comedor-cocina

Diseñar un proyecto de decoración me permite conocer gente con gustos y necesidades diferentes, lo que hace que mi trabajo como interiorista me guste tanto. El diseño que hoy os muestro pertenece al espacio que ocupará el salón-comedor-cocina de una casa de una sola planta. Los propietarios de esta vivienda querían un espacio de concepto abierto, pero donde las zonas estuvieran claramente delimitadas, con un claro gusto por el estilo nórdico, con elementos funcionales y sin cargar los espacios de objetos y muebles.

Hoy os muestro el diseño de este proyecto de decoración que se está llevando a cabo en estos días.

Proyecto-de-decoración


El espacio a diseñar es algo mayor de 40m2, y en él van a convivir cocina, comedor y salón,  buscando amplitud y fluidez, pero con independencia. Lo cual ha sido fácil gracias al pilar de ladrillo caravista, porque está situado en el centro de la sala y permite diferenciar los espacios perfectamente.

El estilo nórdico, con algún elemento industrial, debía ser el concepto decorativo a seguir en el espacio, con una paleta de colores  suaves en paredes y techos para generar espacios de relax.

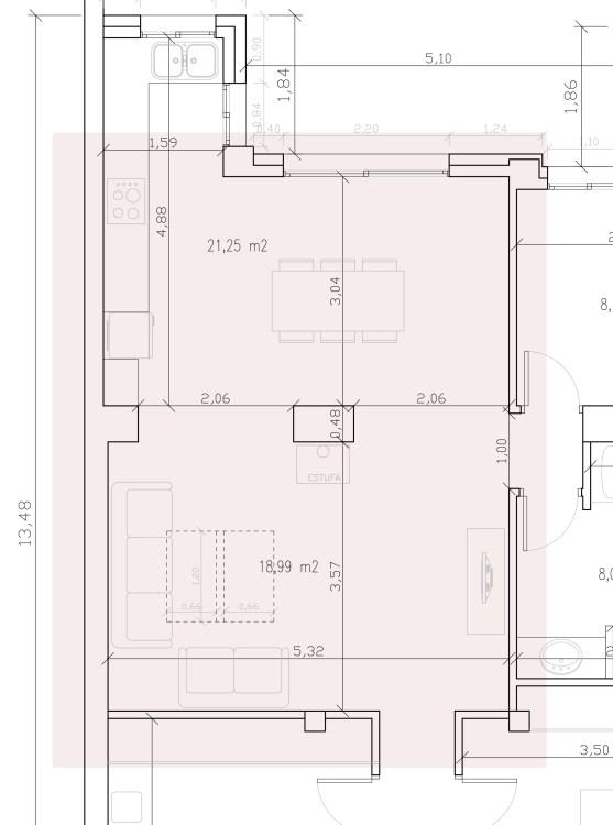
Comenzamos visualizando el espacio a tratar en el plano, que como os comentaba tiene en el centro ese pilar que han respetado dejándolo en ladrillo caravista, que en vez de ser un inconveniente nos ayudará a delimitar los espacios.

I:Mis DocsPROYECTOSJUAN y FANI casa en TorrentSituacion Cast


Diseño de cocina

Comenzamos con la cocina, por ser lo que tenían más claro, pero aun así, el revestimiento del frente de los muebles no estaba decidido, dudando entre utilizar una antigua baldosa hidráulica que rescataron de la casa o colocar un revestimiento algo más moderno y continuo. En cuanto vieron los bocetos tuvieron claro que la baldosa hidráulica que habían rescatado en la obra le daba mucha más personalidad a la cocina.

Boceto-de-diseño-de-cocina


Cocina-en-obras


Diseño-de-cocina


Diseño de comedor

El comedor se situó justo delante de la salida al jardín, por lo que no era recomendable emplear elementos pesados visualmente ni una mesa demasiado grande, mejor que fuera extensible para en el caso de tener invitados poder dar servicio. Una vitrina blanca y unas lámparas suspendidas para la mesa complementarian la zona de comedor.

Boceto-de-diseño-de-comedor


Antes-comedor


Diseño-comedor


Diseño del salón

La característica principal de este salón son sus casi seis metros de altura, los cuales permitían dos opciones, o enfatizarlos y remarcar esa altura o por el contrario utilizar elementos que minimizasen este efecto. Hoy en día, con la cantidad de papeles de pared que existen, podemos conseguir efectos que con la pintura es casi imposible, aquí nos decantamos por un papel de líneas verticales, imitando a árboles, que remarca bien esta característica de la vivienda. Se utilizó el numero mínimo de piezas de mobiliario al igual que en el resto de la estancia.

Boceto-de-diseño-de-salón


Salón-en-obras


Diseño-de-interior-de-salón


Como veis, las herramientas que existen hoy en día para recrear las estancias y poder visualizarlas antes de realizar un proyecto ayudan muchísimo al cliente a decidir la decoración, muebles y revestimientos que utilizar en su vivienda, local o espacio a intervenir, en este caso sólo era una estancia pero también podéis ver más proyectos como el diseño de vivienda en Valencia o el baño de estilo industrial.

Por eso, si estáis pensando en cambiar la decoración de una estancia, en reformar un baño o cocina, no dudéis en poneros en contacto conmigo para pedir un presupuesto sin compromiso en Rutmchicote@gmail.com.

¿Qué os parece el resultado final de este proyecto de decoración?

MARCA-RUTCHICOTE-logo cabecera


Comenta y comparte!!!

Puedes  seguirme también Facebook, twittergoogle+pinterest

o suscribiéndote a la newsletter del blog.

Fuente: este post proviene de RUTHCHICOTE, donde puedes consultar el contenido original.
¿Vulnera este post tus derechos? Pincha aquí.
Creado:
¿Qué te ha parecido esta idea?

Esta idea proviene de:

Y estas son sus últimas ideas publicadas:

¡Renueva tu dormitorio y deja el pasado atrás!, puede hacerlo fácilmente con cosas que tienes en casa, sin gastar una moneda. Hace algunos dias hable con una amiga y le dije porque no te animas y renu ...

Si este fín de semana estás con tus niños y quieres entretenerlos, te propongo un diy facilísimo para hacer con ellos y personalizar unas bolsas mochila de tela. Como ya hice en un post anterior, de r ...

Recomendamos

Relacionado

Decoración Proyectos cambio de look ...

Comenzamos el lunes algo más tarde de lo habitual, pero con mucha energía después de un finde de relax. A pesar de ser carnavales, he aprovechado para hacer una escapadita para descansar y desconectar de la rutina. Hoy os traigo un nuevo proyecto de decoración, esta vez es un cambio de look para un salón-comedor. Los propietarios de esta vivienda querían darle un aire nuevo a su salón cambiando co ...

Apartamentos Decoracion

Hoy adelantamos el home tour del viernes. Para ello vamos a volver a recurrir a un proyecto decorativo 3D. Un fantástico apartamento de 82M2 repleto de frescura y sobre todo con una armónica combinación de materiales y revestimientos. Cada estancia es sencillamente maravillosa y única. "Esta es una de esas vivienda que me enamora a primera vista, desde la entrada, a cada uno de sus dormitori ...

Mis proyectos Comedor Decoración ...

Hoy me hace mucha ilusión enseñarte las fotos profesionales del proyecto online que realicé para la decoración de un salón-comedor y recibidor. En el estudio de interiorismo El País de Sarah, llegan proyectos de diferentes tamaños, necesidades y características. Pienso que ello es uno de los aspectos que hace bonito este trabajo; ya que cada proyecto implica trabajar y buscar soluciones diferentes ...

general decoración arquitectura ...

Buscar las claves para potenciar el espacio reducido, no es nada facil, pues nos podemos encontrar con la complejidad no solo de sus metros, si no de sus divisiones o de su propia estructura. Sin embargo, hoy os voy a acercar una recreacion perfecta. Ideal y cuanto menos, y sobre todo sorprendente que se adapta a un interior urbano y reducido. Un espacio donde se combinan las formas geométricas, l ...

general estudio vilablanch home tours ...

En el barrio Gótico de Barcelona, el núcleo más antiguo de la ciudad y su centro histórico, los edificios suelen tener muy poca luz, sin embargo en este caso, la vivienda de planta estrecha y alargada comunica con 3 patios de luces que la iluminan de forma inusual. Elementos de origen como techos puertas y carpintería se han recuperado. Igual que los suelos de baldosa hidráulica que por sus llamat ...

general casa m y a baldosa hidraulica ...

Baldosa hidráulica para la cocina de la #casamya La cocina es una de las partes que más me gusta de una casa y de las más vividas ya que si tienes espacio seguramente también la utilices para desayunar, comer, merendar… Una idea que siempre me ha rondado en la cabeza es poner baldosa hidráulica en la cocina. Ese aire campestre que da este material siempre me ha gustado y mezclarlo con materi ...

Mis proyectos Asesoraminto Online Decoración ...

Hoy me hace mucha ilusión enseñarte el pre-proyecto de una deco online que he realizado para la decoración de un salón-comedor y un recibidor. Como responsable del estudio de interiorismo El País de Sarah, me gusta implicarme en cada nuevo proyecto, (sea pequeño, grande, una re-decoración; o bien una reforma) y cuidar los proyectos hasta el último detalle. Sólo así se consigue que cada proyecto se ...

Interiores cocinas estilo industrial ...

¡Hola!, el trabajo de un decorador/interiorista va más allá de poner unos muebles aquí o allí y unos cuadros. Seguramente sea por el desconocimiento pero me he encontrado con bastante gente que dice que no contrataría a un decorador/interiorista porque piensan que van a hacer lo que ellos quieren y no tendrán en cuenta sus gustos. ¡Error! Nosotros queremos lo mejor para nuestro cliente, que esté a ...

CASAS ÚNICAS LUGARES CON ENCANTO cocina ...

Este post es el más especial de todos los que hemos publicado hasta ahora, ya que es el primero que dedicamos a mostraros uno de nuestros trabajos. En este proyecto hemos actuado a diferentes niveles, con presupuesto muy limitado y un objetivo claro. Se trata de un piso ubicado en pleno centro de Burgos, en un edificio que data de 1900. Anteriormente se utilizaba como hostal, pero llevaba varios a ...

Interiores luminosidad salen comedor cocina ...

Hoy visitamos una vivienda en la cual su zona de salón-comedor-cocina, pensada como un mismo espacio, es la protagonista. Es un apartamento con tan sólo 50 m2, pero su distribución ha sido pensada para sacarle el máximo provecho a cada uno de sus rincones. Para empezar, se ha pensado en un espacio único para albergar tanto la cocina como el salón-comedor. Su pavimento es el mismo para todo el espa ...