Reformar un piso aumenta su valor de venta

Cuando queremos comprar un piso, este tiene un precio establecido. Mucho de ese valor tiene que ver con el aspecto que tiene. Por ello por medio de una reforma integral, se puede lograr revalorizar un piso rápidamente.

Calcular el precio de un piso

Para calcular el precio de un piso, primero se deben considerar ciertas cosas, las cuales son:

Su ubicación

El sitio en donde se encuentre el piso, dirá mucho sobre su precio final. Si se encuentra muy alejado, será mucho más complicado llegar, ya sea mediante automóvil o transporte público. Otros factores que entran en cuenta, son sus servicios básicos.

La construcción

Los materiales con los que se haya construido un piso, también tendrán mucho peso en el precio final. No todos los materiales son de buena calidad, y de no serlo, el precio no podrá ser tan elevado.

Estado actual

Con el paso del tiempo, cualquier tipo de vivienda puede comenzar a presentar desgaste. El estado actual del piso tiene que estar muy bien cuidado, ya que tendrá mucho que ver con el precio establecido para su futura compra. Este punto es el que podemos usar para revalorizar un piso rápidamente.

reforma vivienda reformar un piso


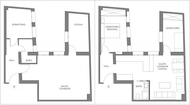
Maneras de reformar un piso para revalorizarlo

¿Buscas reformar un piso en Madrid? Toma nota de estos consejos.

Podemos optar por una reforma integral o una reforma parcial. Según Reformasmadrid100, una empresa de reformas integrales en Madrid, se podrá hacer lo siguiente:

Mejorar todo lo que se necesite

En busca de una mejoría para un piso, se puede comenzar con mejorar los aspectos que presenten mayor nivel de daños o no estén estéticamente presentables. Pintar las paredes de todo el piso, es un muy buen primer paso.

Otra cosa que se puede hacer, es cambiar los suelos del piso. De esta manera, su precio aumentará notablemente. Debemos tener siempre en cuenta que toda obra que evitemos al futuro dueño de la vivienda es algo que hará aumentar su precio de venta final.

Debemos tener en cuenta que toda obra que hagamos debe ser usando un estilo decorativo neutro.

Retoca el baño

Otra buena forma de reformar un piso para revalorizar su valor, es hacer retoques en los baños. Una pequeña reforma que aumente considerablemente el valor de un piso es por ejemplo instalar una ducha en lugar de una bañera. El baño se verá mucho más grande y moderno. Además, cambiando el mueble de baño y mejorando la iluminación conseguiremos cambios increíbles.

reformar un piso


Cambia la cocina

Al igual que retocar el baño, la cocina también debería ser remodelada para un aumento de precio de un piso. En el caso de que los muebles estén bien, incluir nueva iluminación y electrodomésticos, será una buena opción de remodelación para la cocina de un piso.

Cambia las puertas de paso

Otro de los puntos importantes para dar una nueva vida a un piso y aumentar su valor final, es la instalación de nuevas puertas de paso. Dará al ambiente un aspecto fresco y moderno.

Distribuye mejor todo el espacio

Normalmente, en los pisos no hay habitaciones grandes. Para mejorar esto, puedes redistribuir el espacio de las habitaciones. Mueve las cosas de lugar e intenta retirar lo que no sea necesario y lo que ocupe mucho espacio.



Fuente: este post proviene de este blog, donde puedes consultar el contenido original.
¿Vulnera este post tus derechos? Pincha aquí.
Creado:
¿Qué te ha parecido esta idea?

Esta idea proviene de:

Y estas son sus últimas ideas publicadas:

En este post trataré de explicar de forma sencilla cómo funciona un sistema de aire acondicionado. ¿Cómo enfría un sistema de aire acondicionado? En verano cuando hace mucho calor fuera las paredes de ...

Para tener una piscina, debemos tener claro los accesorios que necesita tanto para su instalación como para su mantenimiento. ¿Cuáles son los accesorios básicos para una piscina? Los accesorios básico ...

La caldera es un elemento muy importante en el confort de nuestro hogar. Son instalaciones de calefacción basadas en circuitos de agua cerrados, creados para la climatización de una vivienda u otro ha ...

Etiquetas: Reformareforma

Recomendamos

Relacionado

Reformas

¿Estás pensando en vender tu casa? Entonces lo primero es conocer cuál es su valor real. En este post te explicamos cómo tasar un piso para descubrir por cuánto podrías venderlo en el mercado. ¿Cómo tasar un piso? La tasación de un piso depende de varios factores. Los principales son tres: Ubicación Superficie en metros cuadrados Antigüedad y estado de conservación del piso y del edificio Ubicació ...

Reformas

Siempre que nos planteamos renovar nuestra vivienda nos planteamos cuál será el coste final. ¿Cuánto cuesta reformar un piso?, la respuesta depende de infinidad de detalles, desde las calidades que elijamos hasta el tipo de reforma que vayamos a realizar,en cualquier caso, existen unos precios estándar que se ajustan a un piso medio, en el que se va a realiza una reforma integral.   Esta semana an ...

Reformas

Reformar un piso entero requiere la preparación de un presupuesto previo, en el que podamos determinar el precio de cada partida y el dinero que necesitamos para afrontar la reforma.  Para que puedas orientarte en la preparación de un presupuesto y la planificación de una reforma integral, hemos analizado el precio medio de las principales partidas, en base a un piso de aproximadamente 100 metros ...

Vivienda

Las reformas completas de pisos incluyen todo tipo de obras. Cada reforma completa de piso tiene sus particularidades, por eso es importante saber qué queremos conseguir con la reforma y cuáles van a ser las acciones que vamos a llevar a cabo. Una de las cuestiones más importantes en relación con una reforma integral de piso es el presupuesto final, para calcular el precio de una reforma integral ...

Encontrar la casa o el piso de tus sueños puede ser una pesadilla. Pero a veces podemos encontrarnos con auténticas joyas a buen precio, y quedar deleitados hasta que leemos la terrible frase: piso a reformar. Evidentemente, siempre nos saldrá más barato reformar el piso que comprarlo ya reformado. Pero a veces la perspectiva de realizar una reforma nos puede intimidar. Aunque lo más sencillo es s ...

Reformar mi baño Decoracion baños

Si tenemos un piso en alquiler, puede que en algún momento nos surja la duda sobre reformarlo. Lo cierto es que reformar un piso de alquiler supone algún que otro quebradero de cabeza, no obstante, a la larga, ofrece muchos más beneficios. Si no queremos reformar el piso al concreto, una de las estancias que más se deteriora es el baño. Por lo tanto, una buena opción puede ser reformar el cuarto ...

Baños Reformas

Hasta los baños más pequeños pueden tener su encanto si se tratan de la manera adecuada. Reformar un baño de 3m puede ser la solución adecuada para conseguir una estancia más luminosa, moderna, cómoda y cálida, a través de todos sus elementos. Para ello, es necesario definir cuánto cuesta reformar un baño de 3m, dependiendo del tipo de reforma que se vaya a llevar a cabo. Cómo calcular el precio d ...

Decoración Vivienda Amplitud ...

Reformar Piso. Libera tu hogar de tabiques innecesarios Cada vez con mayor frecuencia al reformar el piso, tendemos a cambiar la distribución de nuestras casas. En muchos casos es necesario eliminar tabiques para integrar espacios, hacerlos más amplios, diáfanos y en definitiva, más confortables. A pesar de lo que puede parecer de entrada, es una tarea sencilla que permitirá dar un aspecto complet ...

Antes y Después General

En este caso hicimos una reforma para revalorizar la casa. Esto quiere decir que todas las decisiones de la reforma estuvieron enfocadas a aumentar el valor de la vivienda, no a satisfacer los gustos o necesidades personales del propietario. Sigue leyendo para ver las claves para subir el valor de una vivienda a través de una reforma de bajo coste y relativamente rápida. Las claves de una reforma ...

Reformas

La reforma integral de un baño es una de las remodelaciones más complejas y costosas de toda la vivienda. Son muchos los factores que influyen en el precio final de la reforma, pero lo más importante es tener claro que, para que la reforma sea de calidad, habrá que encontrar el término medio entre los chollos y aquellos que cargan el presupuesto. Entonces, ¿Cuánto cuesta reformar un baño por lo ge ...