Cómo interirorista no sólo realizo proyectos de asesoramiento de decoración, sino también hago reformas para el hogar. Hoy quiero enseñarte un proyecto que he realizado para una vivienda unifamiliar.
La vivienda, es para una pareja joven y sus dos hijos pequeños, era primordial crear una distribución práctica a la vez que funcional, para adaptarse al estilo de vida de la pareja y sus pequeños.
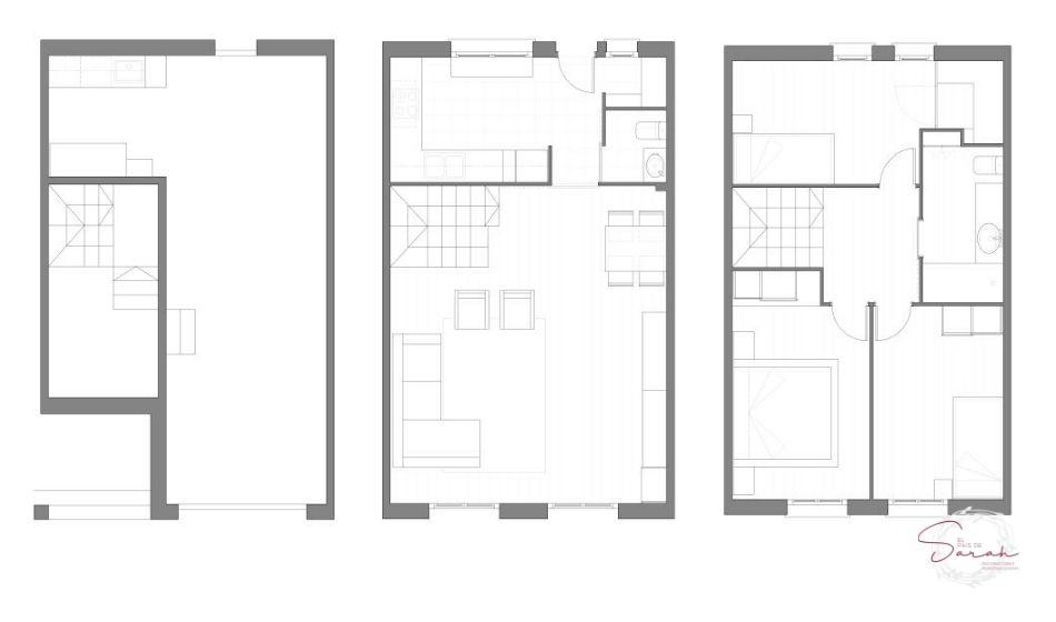
Estado actual
La vivienda que la pareja adquirió es de segunda mano, con una distribución bastante compartimentada y que pedía a gritos una reforma en la cocina y baños. Era fundamental crear una nueva distribución en las diferentes plantas para así poder aprovechar al máximo cada una de las estancias y crear unos espacios prácticos y agradables.
Condiciones
Conservar parte del mobiliario que la pareja tenía en su antigua casa.
Quitar el gotéele de las paredes y techos de toda la casa
Reformar baños
Renovar el aspecto de la cocina
Cambiar los suelos de toda la vivienda
Ampliar el baño de la segunda planta
Reorganizar la distribución de las habitaciones de la segunda planta, para que alguna de ellas fuera más grande
Crear un espacio de lavandería en la planta baja
Propuesta
Después de estudiar el espacio y las necesidades de los clientes, replantee la distribución de las diferentes plantas de la vivienda unifamiliar.
Decidimos quitar las paredes que cerraban la escalera que conectaba las diferentes plantas. En su lugar, se creó una barandilla con tubos de hierro que conectaba las diferentes plantas, de esta manera añadimos mayor sensación de amplitud en cada una de las plantas.
Dentro del espacio del garaje, había un pequeño cobertizo que decidimos quitar para así ubicar en esta zona el espacio de lavandería que los clientes necesitaban.
Planta primera:
En la planta primera, en el espacio del salón – comedor, decidimos quitar la antigua chimenea, ya que era muy vieja y la construcción estaba mal hecha. Esta chimenea ocupaba mucho espacio y no era una necesidad para mis clientes, de esta manera, ganamos espacio en el salón – comedor.
En esta misma planta, decidimos reformar el aseo por completo. El espacio que antiguamente ocupaba este aseo, lo reorganizamos para así poder tener un pequeño aseo más un espacio de despensa que conecta directamente con la cocina.
Se cerró el espacio de la cocina con una puerta corredera de cristal para dar mayor sensación de amplitud y luminosidad a la planta.
Planta segunda:
En la segunda planta reorganizamos la distribución. Las dos habitaciones que dan a la calle las mantuvimos tal y cómo estaban, reformando eso sí el espacio de los armarios.
En esta planta ampliamos el baño, ya que el anterior era pequeño y mal distribuido. Al hacer esta ampliación, no comimos parte de una habitación y para que esta fuera de una medida decente, decidimos quitar un tabique para así de dos habitaciones hacer solo una.
Se cambiaron todas las puertas de esta planta, ya que las antiguas eran muy viejas y no cerraban bien.
A partir de ahí, pasé a crear un panel de inspiraciones para definir colores, texturas, materiales, muebles y complementos para esta reforma.
Opté por el blanco cómo color base, con este punto de partida tan neutro, me permitía añadir color en algunas de las paredes, acabados o muebles. Así que la gama de colores que elegí para ellos fue una combinación de azules y verdes agua.
Elegí nuevas piezas para el mobiliario, que opté por muebles de madera natural para añadir sensación de calidez a la nueva vivienda.
En base al mismo, optamos por un parquet de madera natural, excepto en el recibidor, cocina – despensa y baños que utilizamos un suelo hidráulico.
Elegí el papel pintado que decoraría una de las paredes del salón – comedor. Al igual que los accesorios decorativos y textiles que iban a conformar el proyecto. Teniendo en cuenta que los clientes querían un hogar de estilo nórdico, a la vez, que versátil para que pueda ir cambiando según las necesidades futuras de la familia.
En unos días te enseñaré las fotos del resultado final y así puedes ver todas estas ideas en el espacio real.
Fuente: El País de Sarah – Pinterest
Ya está aquí tu guía Decorar en 5 pasos.
Una guía gratuita llena de consejos prácticos para renovar el aspecto de tu hogar. Apúntate y la recibirás por email:
Espero que la publicación que hoy comparto contigo te haya gustado, en breve, compartiré contigo el resultado final de este proyecto decor presencia.
¿Estás haciendo reformas en tu hogar? ¿Te sientes perdida y no sabes qué debes hacer para ir avanzando con tu proyecto? Te recomiendo a Instapro, cómo recurso a tener en cuenta para poder avanzar en tu reforma.
¿Qué te parece la propuesta?
Deja tu comentario, nos gusta conocer tu opinión. Ellos nos ayudan a dar vida al blog. ¡¡¡Gracias!!!
sígueme en…
* Facebook * Twitter * Instagram * Google+ * Pinterest * LinkedIn *
The post appeared first on El Pais de Sarah.







